
79 Grande Rue, 79190 Sauzé-Vaussais
05 49 07 76 88 /
Stunningly renovated town house with garage and courtyard
AULNAY (17470)
Property details
- Reference : 5210
- Agency fees inc (HAI) 299 500 €
- Property type : House
- Area : AULNAY (17470)
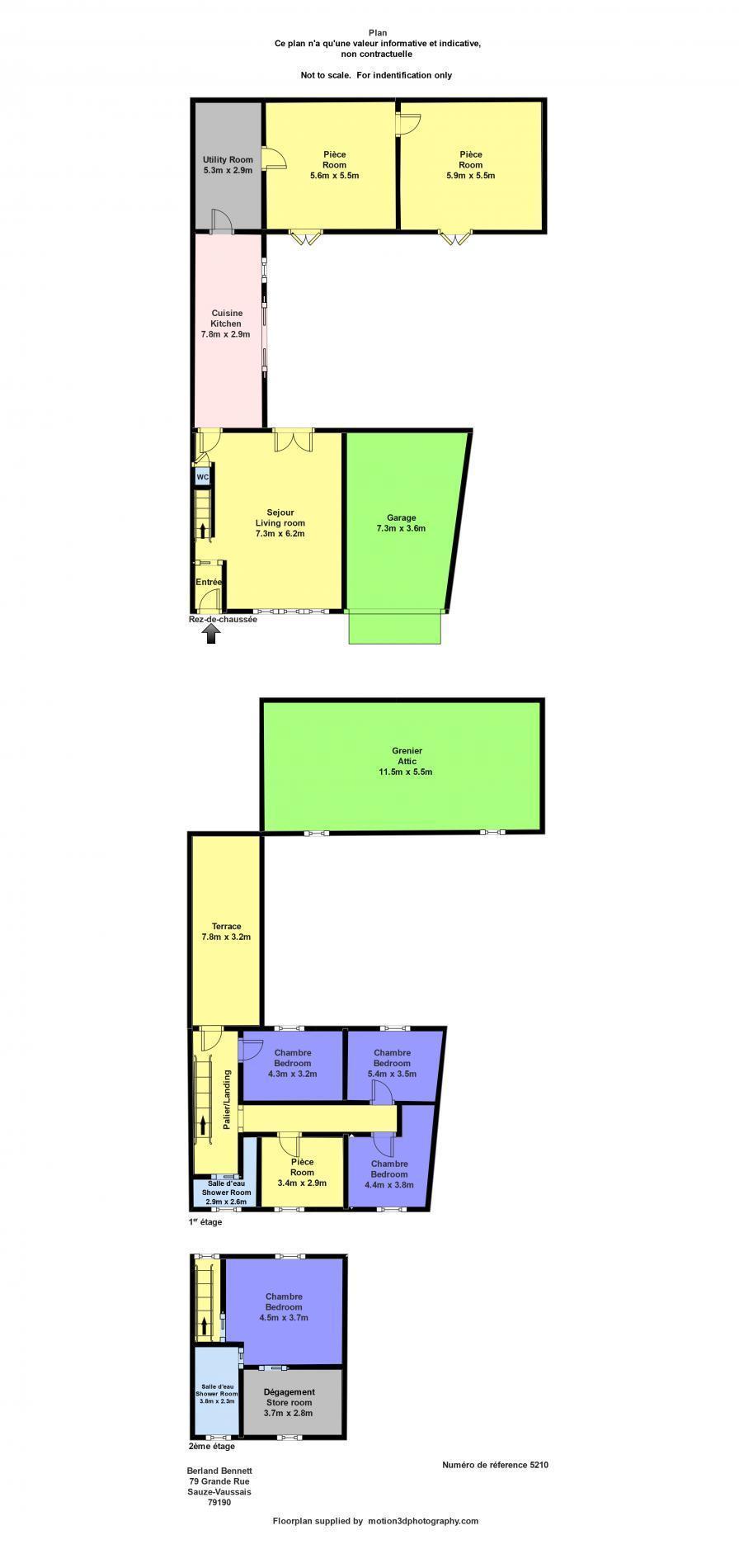
- Living area : 190 m²
- Land size : 333 m²
- Number of rooms : 7
- Number of bedrooms : 5
Description
Ideally located in the heart of Aulnay, just steps away from shops, schools, and all essential amenities, this elegant home of 190 m² combines authentic charm with modern comfort.
On the ground floor, a magnificent 41 m² living room bathed in natural light and featuring beautiful hardwood floors flows seamlessly into a spacious 23 m² kitchen. Designed for both style and conviviality, the kitchen opens directly onto the private courtyard through a wide bay window, creating a perfect indoor–outdoor connection. A practical utility room and WC.
The first floor hosts four generously sized bedrooms, all showcasing the original parquet flooring, along with a contemporary shower room fitted with a sleek Italian-style walk-in shower and WC.
The second floor is a true private retreat: a 18 m² master suite with dressing room and en-suite bathroom, complete with a large walk-in shower and its own WC.
Beautifully renovated, the property harmoniously blends the character of period architecture with thoughtful modern features for a comfortable and functional lifestyle.
Additional highlights include a vast 37 m² garage, approximately 65 m² of outbuildings, and a 92 m² attic offering exciting potential for further development.
Outdoors, the secluded courtyard reveals a sun-drenched terrace—an idyllic setting to enjoy long summer days in complete privacy.
Information about risks to which this property is exposed is available on the Géorisques website : www.georisques.gouv.fr

















