
79 Grande Rue, 79190 Sauzé-Vaussais
05 49 07 76 88 /
Pretty detached stone property with outbuildings and 1.3ha of land
LEZAY (79120)
Property details
- Reference : 5184
- Agency fees inc (HAI) 144 800 €
- Property type : House
- Area : LEZAY (79120)
- Living area : 204 m²
- Land size : 12 914 m²
- Number of rooms : 8
- Number of bedrooms : 4
Description
Located in a peaceful hamlet just a few kilometers from Lezay, this charming detached stone house offers 204 m² of living space in need of refreshing, with excellent potential for extension. Full of character and authentic features, it is ideal for those seeking space, tranquility, and renovation opportunities.
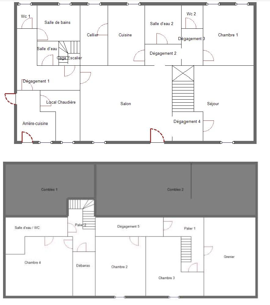
Ground floor : Spacious 35.82 m² living room with exposed beams and a fireplace opens into a warm and inviting adjoining lounge of 29.22 m², also boasting a beautiful stone fireplace. The kitchen, measuring 17.82 m², includes a dining area. This level also features a bedroom of 11.60 m² with an en-suite shower room, a separate WC, a hallway leading to a family bathroom, an additional shower space, and a second WC. A utility room with a boiler area provides practical storage and connects directly to a large 29.80 m² garage.
Upstairs, a landing leads to two well-proportioned bedrooms of 14.82 m² and 17 m², along with an attic of approximately 23 m² that offers excellent potential for conversion into additional living space. A separate staircase leads to a fourth bedroom of 11.46 m² with its own en-suite shower room, offering privacy for guests or family members.
The roof of the main house was completely redone in February 2025, and several windows have already been upgraded to double glazing. The property is equipped with a central heating system, though the boiler will need to be replaced.
Adjoining the house is a beautiful stone barn of 184 m², providing ample space for storage, workshops, or future development. A 53 m² outbuilding connects to the garage, and to the front of the property lies a large courtyard. To the rear, a vast garden opens onto the countryside, while a separate annex building features a 45 m² room with a traditional bread oven and a loft above. There is also old stables of approximately 50 m², offering further possibilities for use or restoration.
The entire property sits on an expansive 1.3-hectare plot, including a meadow, offering peace, privacy, and plenty of room for gardening, animals, or outdoor activities. Whether you are looking for a primary residence, a holiday home, or a base for a hospitality or artisan project, this property is rich in potential.
Information about the risks this property may be exposed to is available on the Géorisques website: www.georisques.gouv.fr









































